Modern Two-Level Apartment with Office
1/1 George Street
Sandringham
483.00m2
Offices
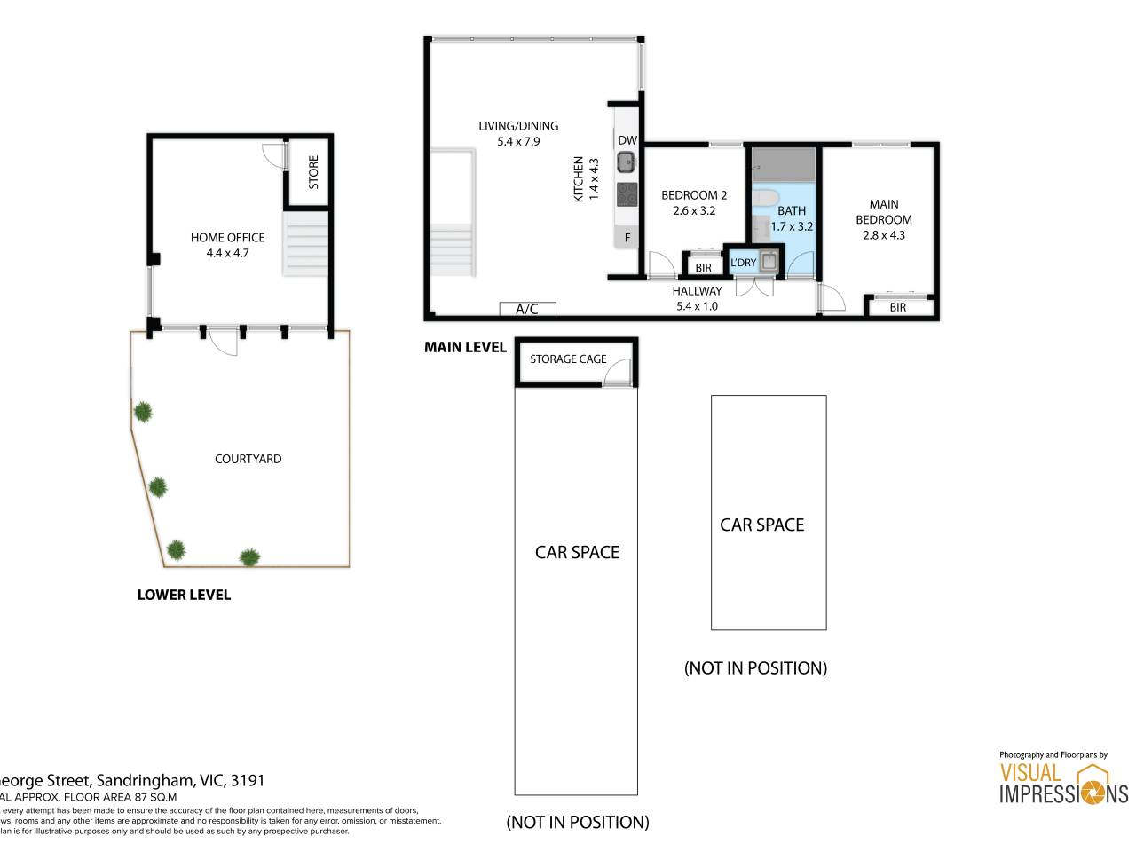
Situated in a superb bayside location, this versatile two-level apartment presents an exciting opportunity for both residential and commercial buyers offering two-bedroom accommodation with home office amenity and three car parks. Featuring excellent street presence and accessibility, the property will suit a range of professional uses (STCA), while also appealing to owner-occupiers and investors seeking strong long-term value.
Just moments from Sandringham Beach, cafés, shops, and transport, this is a unique chance to secure a flexible asset in a premium location.
• Two bedrooms, both with built-in robes
• Flexible downstairs space ideal for study, office or retreat
• Modern kitchen with spacious open-plan living and dining area
• Central bathroom plus separate laundry
• Spacious courtyard area (on licence agreement)
• Three under cover car spaces
For sale via Expressions of Interest closing Thursday 19 March 2026 at 4pm.
Open for Inspection every Saturday and Thursday throughout the campaign.
Saturdays: 11:00–11:30am
Thursdays: 5:00 - 5:30pm
For more information or to arrange an inspection, please contact the below:
Louise Catanese 0413 659 185
Andrew Greenway 0409 547 626
*approximate
Enquire About This Property
Related Listings
