Occupy or Invest on Iconic Fitzroy Street
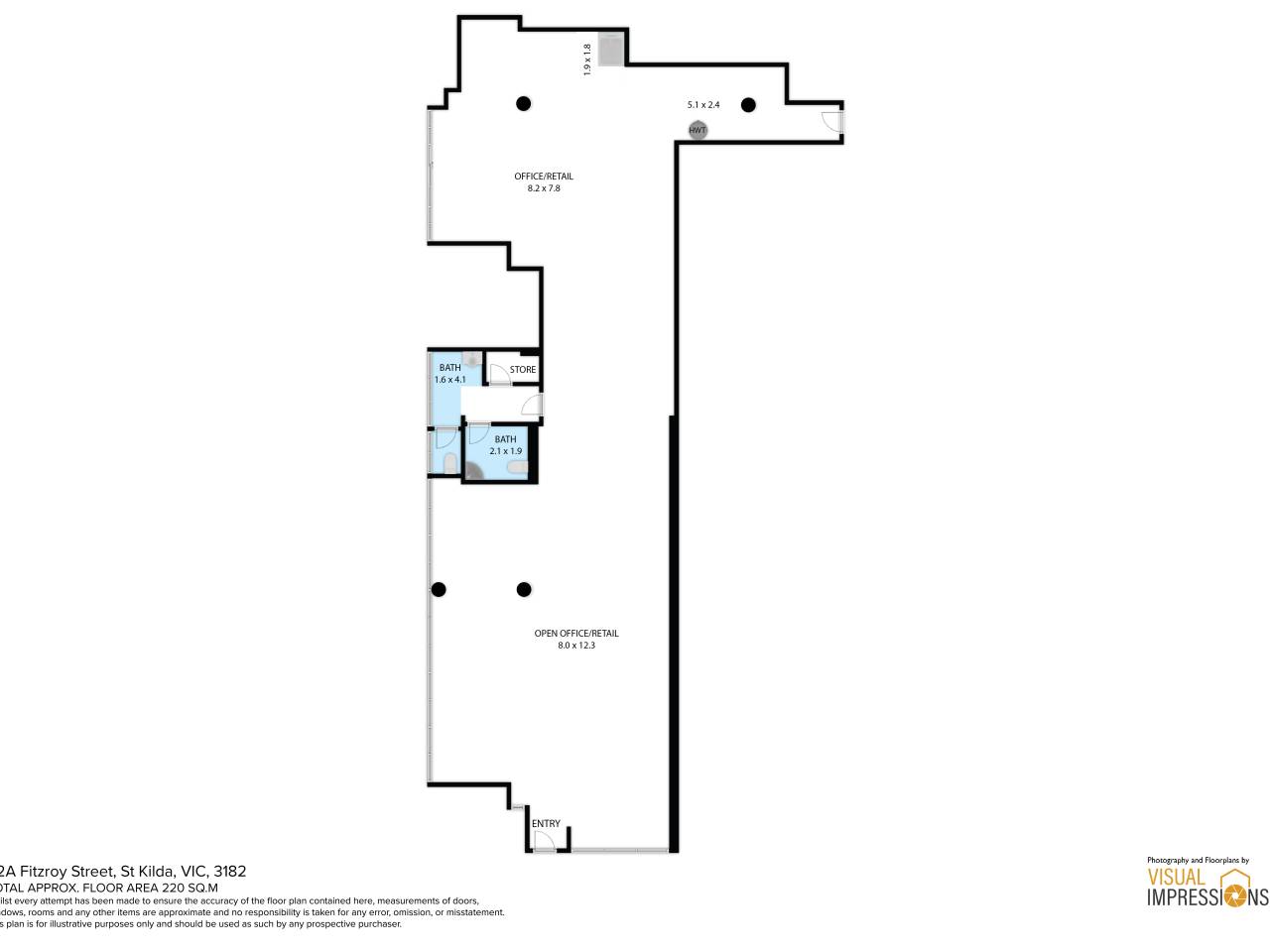
52A Fitzroy Street
St Kilda
220.00m2
Retail
Providing excellent exposure to one of Melbourne’s most iconic retail strips with activity morning, noon and night, the property offers a “blank canvas” opportunity well suited to a host of end uses (STCA), with significant scope to enhance and improve, ideal for owner occupiers and investors alike.
Comprising open plan configuration featuring bifold doors to communal terrace, the property features the following:
• Area of 220 sqm* with self-contained toilet amenities
• Previously used for hospitality providing access to grease trap and exhaust facilities
• 2 secure car spaces (one on title & one on 99-year lease)
• Flexible Commercial 1 (C1Z) zoning allowing a number of uses (STCA)
• Excellent nearby lifestyle amenities including transport options, Albert Park Lake and Bay beaches
• Offered with vacant possession
For more information or to arrange an inspection, please contact the below:
Richard Lowe 0425 742 777
Andrew Greenway 0409 547 626
*approximate
Enquire About This Property
Related Listings
