Bet on this Unbeatable Albert Park Quinella
63 & 63a Cardigan Place
Albert Park
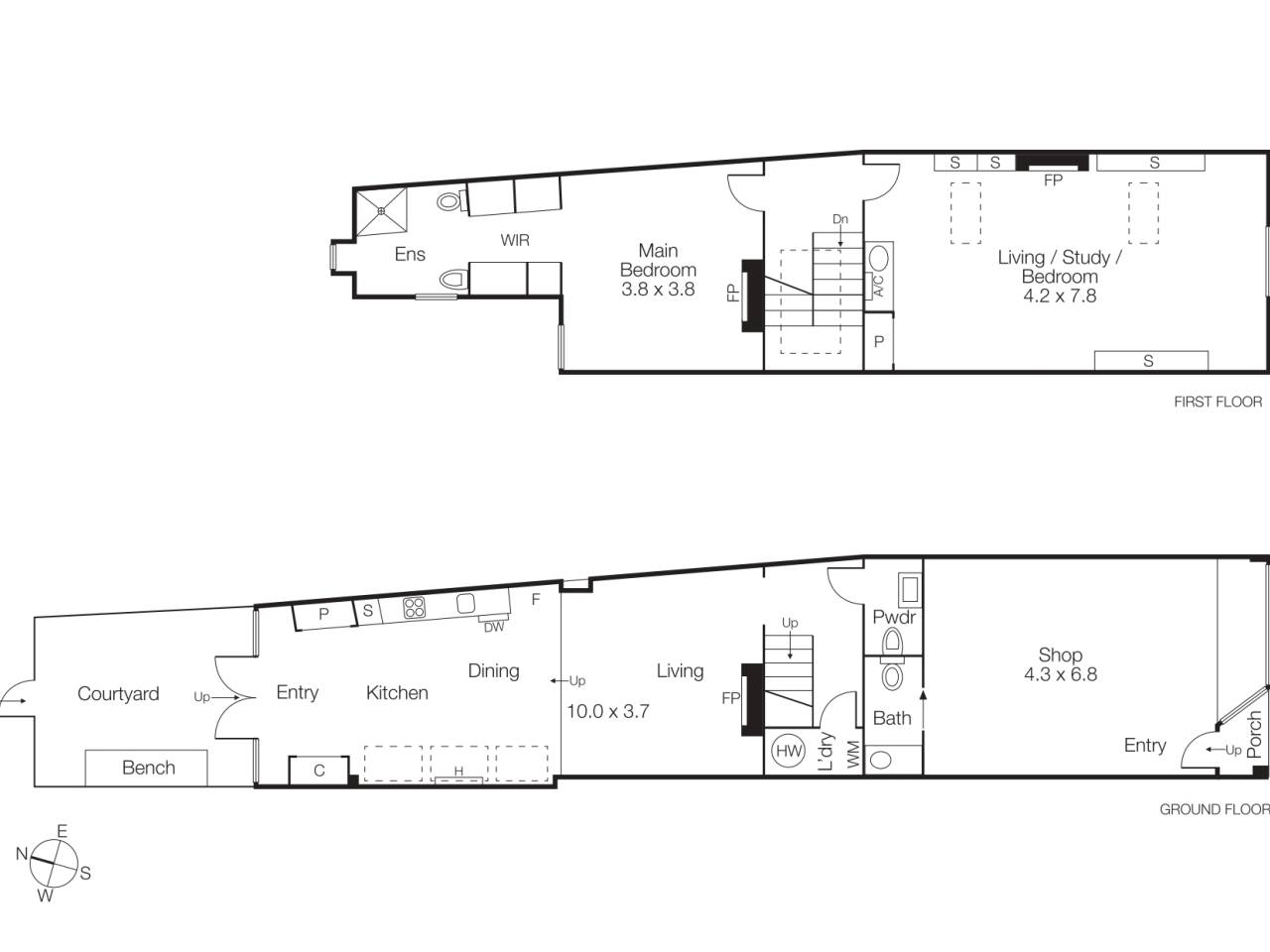
138.00m2
Retail
***SOLD***
Gross Waddell ICR and Buxton | Cayzer with Advise Transact acting as transaction managers, are pleased to offer for sale via Public Auction on Saturday 15th November at 11:00am, this rare and versatile opportunity in one of Melbourne’s most tightly held bayside precincts.
Perfectly positioned at the gateway to the Albert Park Village, directly opposite Albert Park Primary School and surrounded by an eclectic mix of high-end cafes, eateries and boutique retailers, this unique dual-frontage freehold presents two separate income streams on a single title – a winning combination for investors and owner-occupiers alike.
Property Highlights:
• Two self-contained properties on one title
- 63 Cardigan Place: Ground floor retail/office of 28sqm* with character shopfront currently leased on a short-term basis
- 63A Cardigan Place: Charming architecturally designed one-bedroom + study residence over two levels, with private courtyard and rear laneway access
• Two level character filled building totalling 138sqm*
• Freehold landholding of: 102sqm*
• Prominent frontage to Cardigan Place plus rear right of way
• Zoning: Commercial 1 Zone (C1Z)
• Outstanding location with strong local foot traffic, high exposure, and excellent lifestyle amenity
• Rare dual-use investment or live/work opportunity
Whether you're looking to invest, occupy, or future-proof in a blue-chip inner bayside pocket, 63 & 63A Cardigan Place is the ultimate quinella worth backing.
For more information or to arrange an inspection, please contact the below:
Gross Waddell ICR
Alex Ham 0410 545 226
Andrew Greenway 0409 547 626
Michael Gross 0419 355 561
Buxton | Cayzer
Arthur Apostoleros 0411 515 015
Geoff Cayzer 0438 398 636
*approximate
Enquire About This Property
Related Listings
